디자이너스코리아
메뉴
디자이너스코리아
컨텐츠 검색
블로그 내 검색
태그
파노라마 vr
건축 심의도서 제작
시각 광고디자인
디자이너스코리아 시각디자인 포트폴리오
디자이너스코리아 홈페이지
선실디자인
디자이너스코리아회사소개
3d그래픽전문회사
투시도제작
3d동영상제작
부산 대연동 센츄리 오피스텔
외관투시도
디자이너스코리아 오시는길
제안서 제작
디자이너스 코리아 실내투시도
디자이너스코리아 외관투시도
유튜브vr
실내투시도
디자이너스코리아 동영상
선박3d전문회사
최근글
댓글
공지사항
아카이브
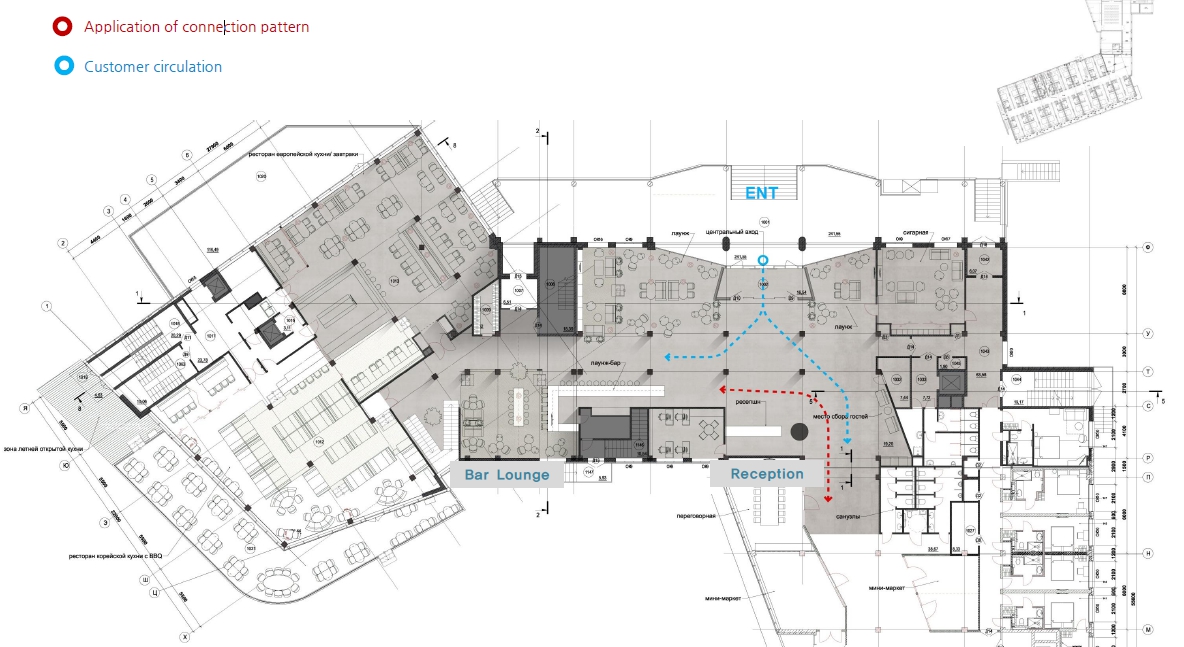
건축 심의도서 / 제안서 제작
2025. 7. 3. 19:35
ㆍ
포트폴리오/건축 심의도서_제안서
▶
건축 심의도서 / 제안서 제작
공유하기
게시글 관리
디자이너스코리아
저작자표시
비영리
변경금지
(새창열림)
티스토리툴바
디자이너스코리아
구독하기